Rénovation énergétique d'un établissement scolaire • Choisy-le-Roi (94) • 2025
Ecole Élémentaire Cachin
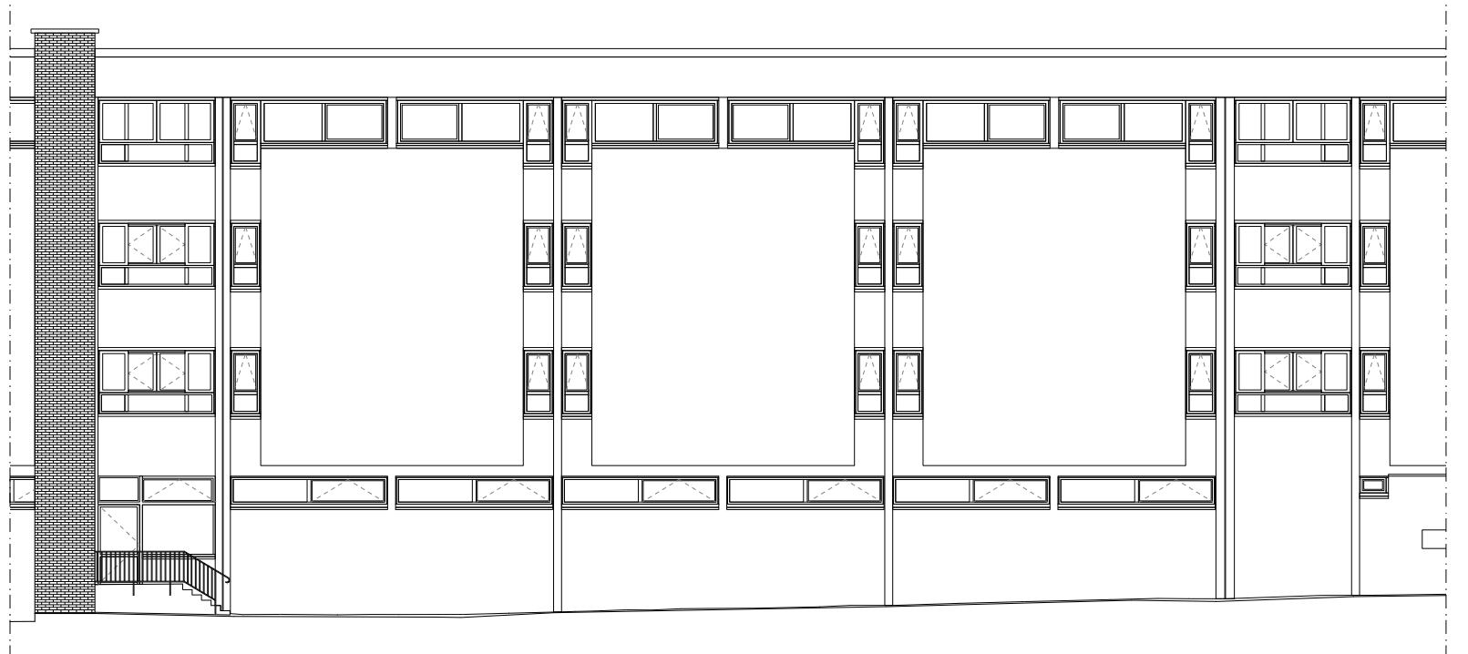
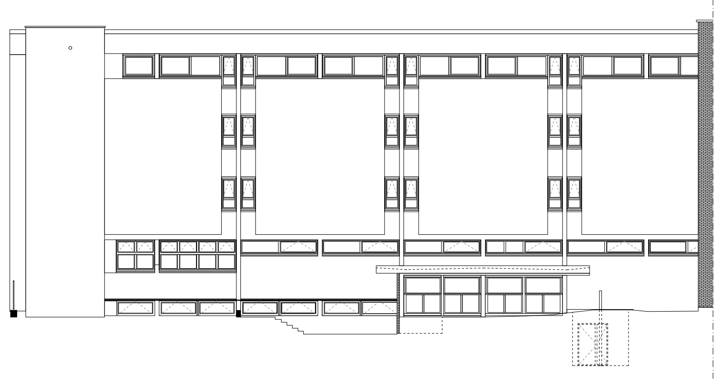
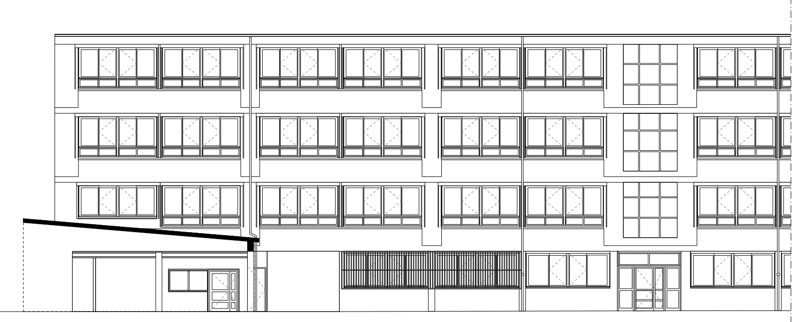
Relevé par scan 3D de l'ensemble des facades d'une ecole élémentaire. Realisation de l'ensemble des plans 2D des facades.
-
Relevé 3D
-
Plans 2D facades
Facades
Type
2025
Annee
Maitre d'Ouvrage Public
Client
Galerie
Derniers projets
Voir tous les projets
Réhabilitation d'un corps de ferme
Corps de ferme St Faust
Relevé par scan 3D d'un corps de ferme de 600 m². Plans 2D de l'ensemble des niveaux, toitures et façades. Plan des toitures en photogrammétrie via capture drone.
Réhabilitation d'un couvent
Couvent des Filles de La Croix
Relevé par scan 3D d'un ancien couvent de 1000 m². Modélisation 3D et plans 2D des niveaux, facades, toiture et plan de masse via une maquette numerique Archicad.
Réhabilitation d'un établissement scolaire
Ecole St Joseph
Relevés par scan 3D d'un établissement scolaire de 4600 m². Modélisation 3D et plans 2D des niveaux, facades, toiture et plan de masse via une maquette numerique Archicad. Video et relevés photogrammetriques par drone.