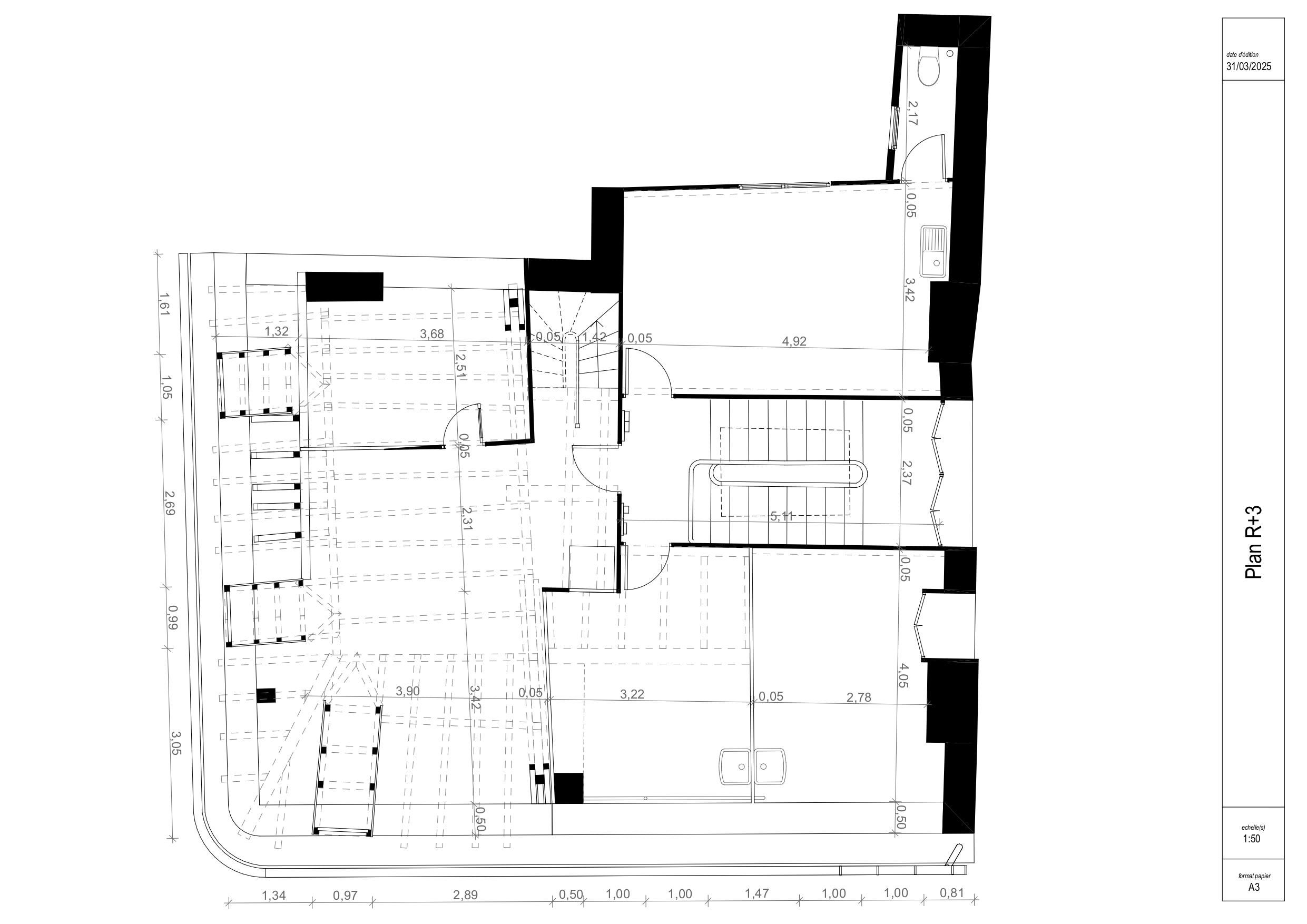
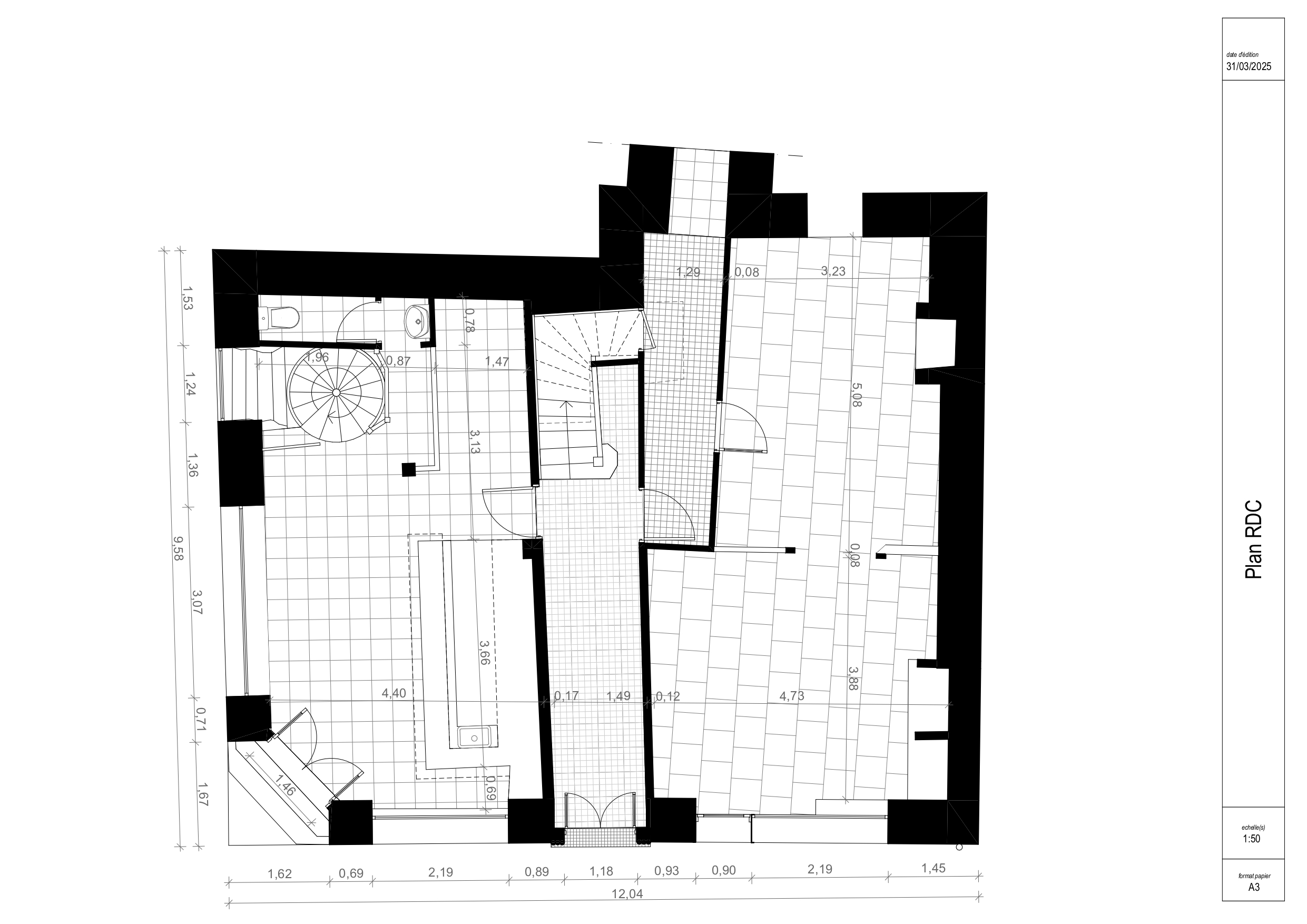
Immeuble d'habitation classe • Cauterets (65) • 2025
Maison La Raillere
Releve par scan 3D d'un immeuble de 550 m². Realisation des plans 2D des niveaux, facades et toitures.
-
Releve 3D
-
Plans 2D niveaux
-
Plans 2D facades
-
Plans 2D toitures
550 m²
Surface
2025
Annee
Maitre d'Ouvrage Prive
Client
Galerie
Derniers projets
Voir tous les projets
Rehabilitation d'un couvent
Couvent des Filles de La Croix
Releve par scan 3D d'un ancien couvent de 1000 m². Modelisation 3D et plans 2D des niveaux, facades, toiture et plan de masse via une maquette numerique Archicad.
Renovation energetique d'un etablissement scolaire
Ecole Elementaire Cachin
Releve par scan 3D de l'ensemble des facades d'une ecole elementaire. Realisation de l'ensemble des plans 2D des facades.
Rehabilitation d'un etablissement scolaire
Ecole St Joseph
Releves par scan 3D d'un etablissement scolaire de 4600 m². Modelisation 3D et plans 2D des niveaux, facades, toiture et plan de masse via une maquette numerique Archicad. Video et releves photogrammetriques par drone.